إن جهاز التصنيف الهوائي العمودي هذا، أو المصنف الهوائي، أو الغربال، أو أداة التصنيف الهوائي، عبارة عن آلية صناعية تقوم بفصل المواد عن بعضها البعض باستخدام الهواء. وذلك بعد أن توضع المواد المراد تصنيفها في حجرة ثم بعد ذلك يسلط عليها هواء يرتفع إلى أعلى حتى تتم عملية العزل.
ويتم اعتماد عضو دوار للقيام بالتصنيف تم تصميمه خصيصا من أجل تحسين قدرته على فصل المواد المراد عولها عن بعضها البعض بأقصلا درجة من الفعالية. وفي الوقت نفسه يضمن فعالية أفضل للتصنيف أخذا بعين الاعتبار لحجم المواد التي يمكن تصنيفها خلال فترة معينة. ويمكن أن يتم استخدام مصنفات متعددة حتى يتم الحصول على المواد بأحجام مختلفة كذلك. وفضلا عن ذلك، يمكن أن يتم استخدامه مع أجهزة طحن مختلفة من أجل تحسين فعالية الإنتاج.
يعتمد جهاز التصنيف الهوائي العمودي هذا، أو المصنف الهوائي، نظام تحكم أوتوماتي متطور بحيث يسمح بعرض وضعية التشغيل في الوقت الحقيقي. وعلى العموم فهو يشتغل بالضغط السلبي، وتقل انبعاثاته من الغبار عن 40mg/m3 ـ أما الصوت الصادر عنه فلا يتجاوز 60dB.
المواصفات| النموذج | LFJ-400 | LFJ-600 | LFJ-800 |
| حجم الطحن (μm) | 2-15 | 2-15 | 2-15 |
| القدرة الإنتاجية (كلغ ساعة) | 300-1000 | 500-1500 | 1000-3000 |
| قدرة العمود الدوار (kw) | 4 | 7. 5 | 11 |
| تدفق الهواء (متر مكعب ساعة) | 2400 | 3800 | 5000 |
| استهلاك الهواء (متر مكعب دقيقة MPa) | 1.6/0.7 | 2.0/0.7 | 3.0/0.7 |
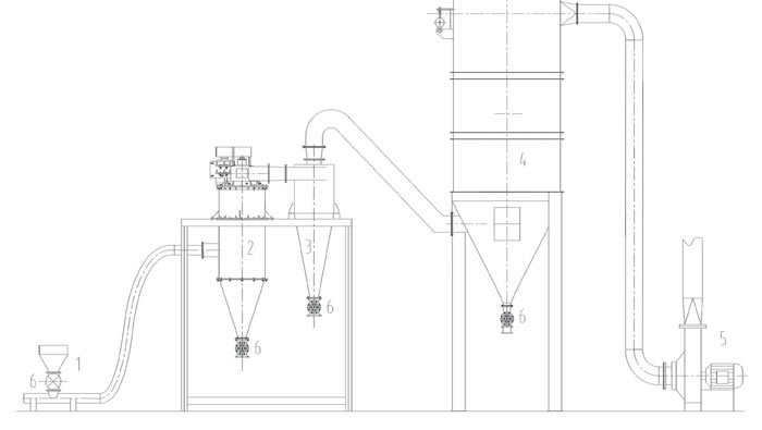
الرسم البياني لجهاز التصنيف الهوائي

1. جهاز التغذية
2. جهاز تصنيف هوائي LFJ
3. أداة فصل حلزونية
4. جامع الغبار
5. مروحة تعديل تدفق الهواء
6. صمام دوراني
إننا نتوفر على منتجات أخرى عديد لذا ندعوكم إلى التواصل معنا مبشرة وطرج كل ما لديكم من استفسارات وتساؤلات حول هذا المنتج أو غيره من المنتجات. إننا دائما نتطلع إلى التعامل معكم.